Echo’s van de werkvloer
Hans de Wit, De Grinnell
Het onderzoek naar de firma De Grinnell leverde nog een vierde werknemer op, Hans de Wit, die nog steeds actief is in het vak met zijn eigen bedrijf De Wit Project Engineering. Op 2 juni 2017 vond het interview plaats in Pijnacker.
Hoe bent u bij de Grinnell terecht gekomen?
Mijn oudere neef zat bij De Grinnell op de salarisadministratie. Ik ben daar 1 november 1969 begonnen. Er was toen een hele grote personeelsschaarste. Ik kwam van de lagere technische school af en ze stonden je al bij de poort op te wachten of je bij hen kwam werken. Mijn neef zei, ze zoeken bij ons leerling tekenaars. Ze hadden iemand nodig, ze werkten toen met lichtdrukmachines, die moesten bediend worden en klein tekenwerk, daar zochten ze jonge krachten voor. Ik kreeg een telefoontje en ik was meteen aangenomen. Ik moest er alleen nog een keer naar toe komen om te laten zien wie ze aangenomen hadden. Ik ben daar als leerling tekenaar begonnen, ik was toen 16 jaar.
U begon als leerling tekenaar?
Dat was eigenlijk tekeningen opruimen, dat waren grote vellen, die moesten vrijdag middag allemaal opgeruimd worden. Je had toen nog niet van die automatische machines, dus je moest een soort grote kopieën erdoor halen. En dan werden er met potlood tekeningen opgezet, van gebouwen en dan mochten wij dat gaan intekenen en met een sjabloontje erbij gaan schrijven, dat was het beginnend tekenwerk.
U bent echt onderaan begonnen?
Ja, ik ben op mijn twintigste naar de avondschool gegaan, ik kwam verder in die voorschriften terecht en dat was allemaal in het Engels. Toen heb ik weer vijf jaar op de avondschool gezeten, toen heb ik de Mavo en de Havo gedaan, met wiskunde, scheikunde en natuurkunde pakket. Daar ben ik op mij 25ste dan voor geslaagd.
En wat deed u toen inmiddels bij De Grinnell?
Toen werd ik al naar projecten gestuurd, ik maakte zelf al ontwerpen. Je kreeg in die tijd een mentor aangewezen en daar werkte je nauw mee samen. Hij moest je in het vak helpen, hij had een paar jaar meer ervaring en dan ging je samen naar een werk toe. Vaak nog met openbaar vervoer, met de trein, met de brommer naar het station.
Wat deed u dan op zo’n werk?
Opmeten, het waren vaak bestaande productiehallen en dan moest je ter plekke inmeten hoe die leidingen kwamen te lopen. Je maakte eerst een tekening en van die tekening maakte je weer werkplaatsstaten. Vanaf die werkplaatsstaten werd het dan, prefab noemden wij dat, in delen gemaakt en dan naar het werk vervoerd en de monteurs die moesten dat erin gaan maken.
En dan klopte er weer iets niet of het ging niet zoals we gedacht hadden en dan moest je er weer naar toe om een oplossing te zoeken. Daarom was je vaak op een werk aanwezig. Veel meer dan nu. Nu is het digitale tijdperk, je maakt de tekeningen in 3D. Toch komt het nog wel eens voor, dat je in oudere fabrieken installaties, die opnieuw in kaart moeten worden gebracht, ter plekke dagen aan het inmeten bent. En dat geeft ook wel een beetje jus aan het vak, vind ik. Ik zeg altijd, als je het ontworpen en getekend hebt, dan wil je ook zien, dat het gebouwd wordt.
Hoe ging dat destijds, op een tekentafel? Op schaal?
Ja, op schaal met een potlood en met een Rotring pen en als het fout was, dan werd het gummen en krassen.
Hoe lang was je dan bezig aan zo’n tekening?
Weken, we zijn naar projecten gestuurd, daar moest zoveel ingemeten worden dat er een keet op wielen daar naar toe gestuurd werd en 3 tekenborden op de vrachtwagen en dan zat je daar een maand op dat werk.
Wat waren dat voor werken, kunt u wat noemen?
Ja, elektriciteitscentrales en we zijn ook bij een grote fabriek van General Electric geweest in Bergen op Zoom, die gingen dan een nieuwe fabriek bouwen. We hebben daar een jaar op het werk gezeten. Je ging ontwerpen, maar je bleef ook tijdens de aanleg daar. Wij deden een deel tekenen en berekenen en dan gingen ze monteren en de probleempjes in de uitvoering die werden dan gelijk opgelost op het werk. Dan reden we een jaar op en neer naar Bergen op Zoom. Dat is tegenwoordig niet meer denkbaar.
We zijn ook nog een keer drie maanden in Luik in een hotel geweest, toen waren we nog internationaal. Wij hadden niet genoeg werk in Nederland, dat was in de jaren 80, crisis, en dan werden we een tijdje uitbesteed aan Brussel en die hadden een paar projecten in Luik en dan zaten we daar een tijdje.
Met hoeveel mensen gingen jullie dan?
Met z’n tweeën, soms zoals bij General Electric, zaten we met zijn vieren.
Toen we in Brussel zaten, moesten we in Luik inmeten, daar waren we drie dagen mee bezig, dan gingen we terug naar Brussel, daar werden de tekeningen besproken. En dan zeiden ze ga het zo maar uitwerken. En dan gingen we weer een paar dagen naar de Jupiterkade en daar werd alles op het tekenbord uitgewerkt. Dan ging je de andere week met je tekeningen onder je arm weer daar naar toe.
Toen we begonnen bij De Grinnell in de jaren 70, waren zij eigenlijk de enige in Nederland, die bekwaam waren in het aanleggen van sprinklerinstallaties. Al die kennis kwam uit Engeland. In de jaren 80 zijn er natuurlijk veel meer op de markt gekomen, het was een lucratieve business. De Grinnell had in de jaren 70 echt een monopolie positie, de inspectie en alle verzekeraars liepen daar over de vloer. Zo’n sprinklerinstallatie was natuurlijk vaak een verzekeringseis, die aangelegd moest worden.
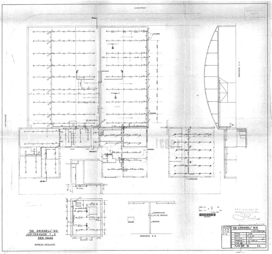
Even terug naar het gebouw aan de Jupiterkade. Waar was het magazijn precies?
Dat zat aan de achterkant van de fabriek. Daar hadden ze eigenlijk een grote tussenvloer en daar onder en boven was het magazijn. Aan de andere kant was de hele lasstraat, waar alle lassers stonden, dat was een hele open ruimte. Hier stonden vijf lassers en dan was hier aan de voorkant nog een bankwerkerij, waar alle die beugeltjes en toestanden werden gemaakt.
Was het toen één grote doorlopende hal?
Ja, van voor tot achter en hierachter was de fietsenstalling. Aan de achterkant was de ingang voor vrachtwagens, aan de voorkant had je een loopdeur. Beneden waren ook nog de was- en kleedruimtes voor de fabriek.
De laatste jaren bij De Grinnell was ik projectleider, tot 1994, toen was daar crisis, toen ben ik naar een andere installateur gegaan, van der Velden, daar werd ik productiemanager. Dat heb ik anderhalf jaar gedaan, toen dacht ik, dat gaat het niet worden tot mijn vijfenzestigste.
Was dat een concurrent?
Ja, die zat in Uithoorn, nu zitten ze in Woerden en heet het Breijer of Trigion. Daar heb ik nu ook nog wel eens opdrachten van.
Wanneer bent u weggegaan bij de Grinnell?
Eigenlijk in 1987, toen ben ik naar de inspectie gegaan. Een van die verkoopleiders was directeur geworden bij een inspectiebureau en die kende mij goed. Die heeft mij daar naar binnen gehengeld. Dat heb ik twee en half jaar gedaan. Dat vond ik toch te zwaar, de hele dag inspecteren, dingen beoordelen, geen praktijk meer. Toen kon ik weer terugkomen, ze hadden een opdracht voor het ministerie van VROM, daar moest een sprinklerinstallatie in. Een enorm groot project, het zou drie jaar duren en de projectleider, die ze daar op hadden gezet, die had ruzie gemaakt, dus hij moest er af. Toen werd ik gevraagd. Toen heb ik dat project gedaan bij VROM, dat was nieuwbouw. Tot 1992 ben ik daarmee bezig geweest. Daar zat ik wel drie dagen in de week, met vergaderingen en besprekingen, montage overleg, planningen maken. Daar heb ik tot 1992 gewerkt en toen viel er eigenlijk een gat, toen waren ze ook net verhuisd naar Woerden, dat is in 1991 geweest. En toen kwam er weer een reorganisatie in 1993 en kregen we de melding er gaan er weer 20 uit. Toen dacht ik, ik ga het niet afwachten en ben ik naar Van der Velden gegaan. Dan ben je eigenlijk de hele dag met cijfertjes en getalletjes bezig en het hele ontwerpen en tekenen dat was ver van je weg, daar had je mensen voor. Dus dat vond ik niet leuk, maar ik had natuurlijk een auto van de zaak en winstdeling. Op een gegeven moment zei ik, ik laat het allemaal schieten en probeer in mijn oude vak terug te komen. En inmiddels hadden we toen besloten om het een jaar voor mezelf te proberen, in 1995, en dat is tot nu toe nog steeds zo.
Hoe was de sfeer bij de Ginnell?
Het was daar heel gezellig, je stond daar met zijn allen op die tekenkamer, allemaal zo’n beetje van dezelfde leeftijdsgroep, dat was ook een soort vriendenclubje. Daar ben ik indertijd ook voor terug gegaan.
Het was een dochterbedrijf van een Engelse firma, had u daar iets mee te maken?
Ik ben er één keer geweest, voor een cursus. Het was begin jaren 70, toen waren net die computerberekeningen in opmars. Dan kreeg je daar een opleiding van een dag hoe dat allemaal werkte en ’s avonds weer op het vliegtuig terug.
Die Engelse firma was zo bezig met techniek, een handboek schrijven, dingen testen. Die vergaten wel eens, dat er ook nog geld verdiend moest worden. Mather en Platt waren twee kerels, die het bedrijf hebben opgezet in de 19e eeuw. Die hebben later iemand in dienst genomen en die is Wormald begonnen en die heeft uiteindelijk Mather & Platt overgenomen. Uiteindelijk is Wormald ook weer overgenomen door Tyco.
Je moet bij zo’n installatie ergens water vandaan halen, hoe gaat dat?
Het goedkoopste is water van de waterleiding, maar de waterleiding is het beleid aan het voeren, dat ze drinkwater leveren, geen bluswater. Er zijn wel installaties, die rechtstreeks op de waterleiding zitten, dat is het goedkoopste en betrouwbaar. Er zijn nu ook centrale watervoorzieningen. Op een industrieterrein is dan één grote watervoorziening aanwezig en elk bedrijf kan daar tegen betaling op aangesloten worden.
Nu is er ook weer een hele nieuwe tendens, woningsprinklers. Waarom is dat?
Wij lopen altijd reclame te maken, dat er nog nooit een dode gevallen is in een gesprinklerde ruimte. Waarop brandweerlieden zeggen, bijna alle dodelijke slachtoffers vallen bij woningbranden. Dan zou je die ook moeten sprinkleren. In Engeland en Amerika zijn ze daar al veel verder mee. In Engeland wordt voor 10 miljoen omgezet aan woningsprinklers. Michael heeft begin van het jaar ook een speciale cursus woningsprinklers gevolgd. Daar zijn nieuwe voorschriften voor. Ook voor verzorgingscentra, de nieuwbouw wordt meteen van sprinklers voorzien. Ze hebben wel een rookmeldinstallatie, maar er wordt niets aan blussen gedaan en die mensen vluchten niet zo snel. Dat is de nieuwste ontwikkeling, kleinschalige installaties, die aangesloten worden op de waterleiding.
We hebben een grote marktversnelling gehad in 1990 toen het bouwbesluit werd aangepast. Binnen het bouwbesluit kon je een maximaal brandvrije compartimenten hebben en toen hebben ze in het bouwbesluit opgenomen, dat je bij een gelijkwaardige oplossing een groter compartiment kan nemen als je een sprinklerinstallatie neemt. Dat gaf de architecten veel meer vrijheid. Tot het bouwbesluit was het vooral industrie en fabrieken, maar nu kwam er een markt bij: scholen en overheidsgebouwen. Het hoofdkantoor van de ABN AMRO-bank, dat is eind jaren 90 gebouwd, een enorm groot complex van vijf gebouwen, daar zitten 16.000 sprinklers in. Dat is ook vanwege de grote omvang een complete sprinklerinstallatie.
Ik zie diverse kopjes op die sprinklers, heeft dat met de functie te maken?
Ja, deze [grote kop, dikke leiding] wordt gebruikt voor opslagruimtes, dat is allemaal van de laatste 20 jaar. Nederland is zich gaan richten op de logistiek, er worden enorme magazijnen gebouwd, er worden schepen aangevoerd met containers en dat wordt in magazijnen opgeslagen en met vrachtwagens door getransporteerd. Nou noemen ze dit ook wel een verzekeringssprinkler. Voorheen moesten er niet alleen sprinklers aan het dak, maar ook alle tussenlagen van de stellingen moesten worden gesprinklerd. En dat was een probleem, soms werd het kapot gereden of het zat in de weg. Uiteindelijk zijn deze sprinklers toen ontwikkeld, dat je in een magazijn tot 13 m hoog alleen maar sprinklers aan het dak hoeft neer te zetten. Dat is allemaal weer getest, dat je alleen met een zware dakinstallatie voldoet aan de verzekeringseisen. Hier komt 600-700 liter water per minuut uit, terwijl die andere maar 100-120 liter geven.
Welke verschillen zijn er nog meer?
Dit is een smal glaasje, die springt sneller aan, dit is een type, dat mag je alleen staand monteren en dit type kun je staand en hangend monteren. Toen ik in 1969 begon had je circa vijf verschillende types en nu heb je er honderden. Er komen elk jaar weer nieuwe bij. Deze komen bij Tyco vandaan, die worden verhandeld in Enschede en gemaakt in Amerika. Tyco is een handelsmaatschappij, die neemt het op voorraad, slaat het hier op en verkoopt het door aan installateurs.
Vroeger hadden we alles in eigen hand, de fabriek, de montage, je kon ook veel sneller schakelen. Nu ben je meer afhankelijk van leveranciers, van onderaannemers en er komt veel meer organisatie bij kijken.















